Après quelques lessives lorsque je veux mettre en marche ma machine à laver Arthur martin AWT1255AA plus aucuns voyants ne s’allument, je ne vois pas d’ou cela provient, j’ai vérifié si le courant arrivait et il arrive jusqu’au filtre antiparasite mais après!!!
Avez vous une idée sur ce problème?
Avez-vous du courant APRES l’antiparasite ?
Oui, j’ai du courant après l’anti parasite
Les pieces à verifier ensuite sont le
selecteur de programme et la sécurité de porte.
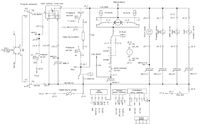
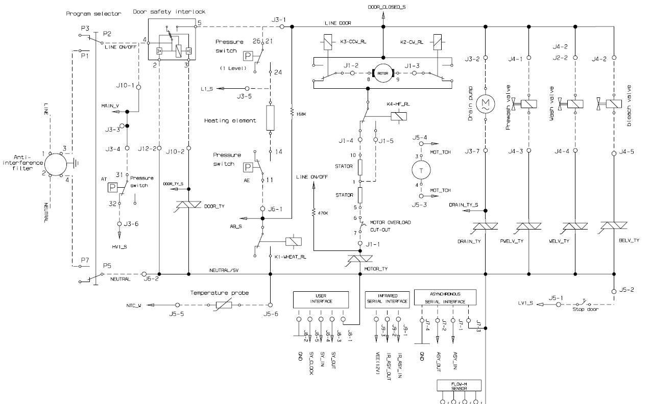
Ci-dessous le schema electrique de la machine (ça peux aider !) :
Oui, j’ai bien du courant sur le selecteur de programme et sur la sécurité de porte, par contre que dois-je controler ensuite
Si les voyants ne s’allument pas, le module de controle et d’affichage n’en serait-il pas la cause. Si c’est le cas, faut-il un code pour le réinitialiser?
pour un diagnostic plus complet ,essayez de voir avec la DOC TECHNIQUE
Bonne lecture et bon courage …
Merci, je vais tester d’après la docummentation technique et je vous tiens au courant
